腾博会专业效劳诚信为本

腾博会·专业效劳,诚信为本 -官方网站

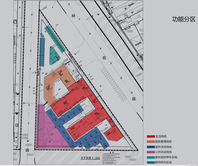
黄姚配套幼儿园

宣布日期:2022-02-11 17:41:58

黄姚配套幼儿园项目占地面积约0.89万平方米,,,,,修建面积约0.76万平方米 。。。 。。

项目位置北至林苑路,,,,,南至沿山大道,,,,,西至学苑路,,,,,东至林苑路 。。。 。。

现在正于计划报审阶段,,,,,开工时间待定 。。。 。。

腾博会·专业效劳,诚信为本 -官方网站

区位图

腾博会·专业效劳,诚信为本 -官方网站平面图

腾博会·专业效劳,诚信为本 -官方网站

效果图

腾博会·专业效劳,诚信为本 -官方网站

效果图

腾博会·专业效劳,诚信为本 -官方网站

版权所有:腾博会专业服务诚信为本 苏ICP备16057899

【网站地图】【sitemap】